Prix

Trophée Béton 2022

Éloi RICHIERO lauréat du prix Trophée Béton écoles !

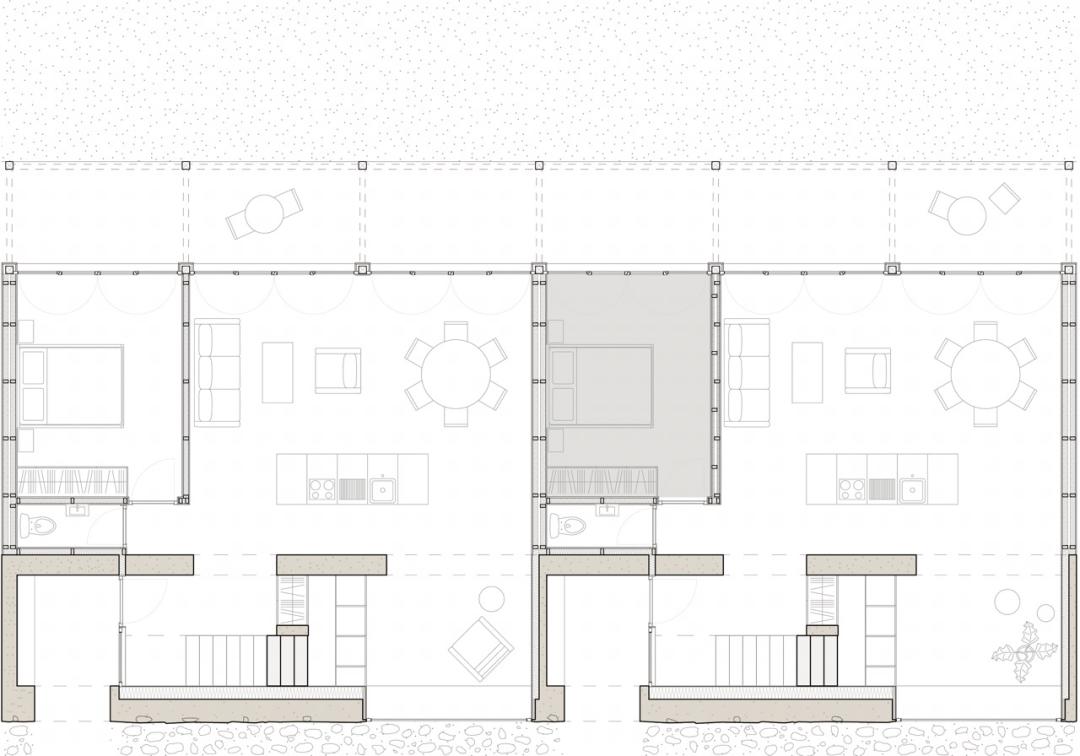
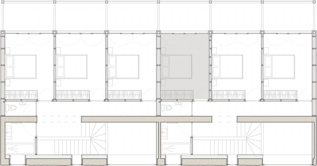
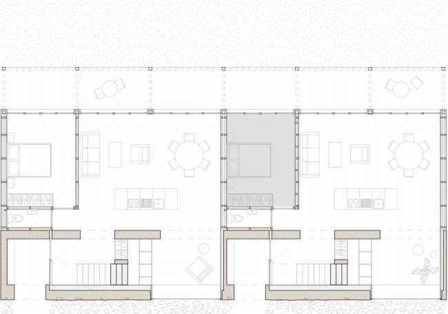
Éloi RICHIERO, diplômé de l’ENSAS en 2022, a obtenu le 1er prix PFE du trophée Béton Ecoles 2022,  pour son projet « MUR-EAU : Comment se saisir de la question du milieu pour retrouver une centralité à la ville de Duingt ? ».
Directeur d’études Michel SPITZ - domaine Architecture Art et Technique.

Félicitations à lui ! 

Consultez le Rapport de présentation du PFE : 
Atelier(s) associé(s) ::